焕然新生 麦肯世界集团纽约总部设计

麦肯世界集团是全球最大的传播集团成立于1902年,总部设在美国纽约,公司创立超过百年的历史,是全球著名的跨国4A广告公司之一。旗下设有麦肯广告、优势麦肯媒体公司、MRM 客户关系行销、MOM活动行销公司、万博宣伟公关公司、麦肯健康传播公司及Future Brand 企业品牌规划公司。

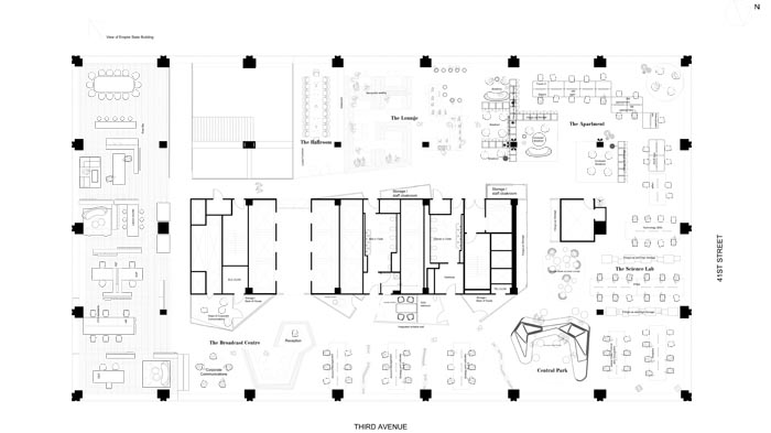
在庆祝公司成立100周年之际,McCann(麦肯)对其纽约总部5层楼的办公室重新打造,以崭新的面貌诠释其品牌形象。McCann希望新的办公空间时尚、优雅而又独具个性色彩。著名设计公司Gensler不负所望,一处时尚而又多功能的工作空间满足了一天不同时段的各种需求,即可用于日间协同工作、又可用于晚间休闲娱乐。多功能的工作格局增加了空间的有效利用,一改旧时拥挤的局促景象;双层挑空的接待大厅堪比纽约最时尚的酒店大堂;开敞的平面布局更高效的利用空间,并将自然光引入室内深处,迷人的城市景观也尽收眼底。

五楼国际行政办公区由英国著名设计大师Tom Dixon 负责改造,工业与创新向来是这位鬼才设计师及其同名品牌的风格标签,天马行空的创意思维构造了一个非凡的世界。

炫丽夺目的中央公园顶面由102个镜面铜制半圆造型组合而成,特别定制的蓝色层叠休闲座椅营造出园林的氛围,金色的张扬、蓝色的深沉、灰色的内敛,冷暖色调的对撞与兼容并蓄,开启了丰富的质感之旅,也成为人们休闲交流的绝佳去处。Tom Dixon 的镜面灯具优雅的装点着室内空间,新奇的造型与亮泽的表面,令人品读出多样性的空间性格与时尚内涵。

焕然新生的新办公室令客户与员工流连忘返,自搬入以来这里的晚间预约活动安排一直爆表。

































文字由时尚办公网编译,转载请注明。