快乐童年 以色列拉马特甘艺术与科学小学设计欣赏
项目设计:Sarit Shani Hay 项目地点:以色列 拉马特甘项目面积:120 平方米项目时间:2014年家具设计:Sarit Sh
项目设计:Sarit Shani Hay 项目地点:以色列 拉马特甘 项目面积:120 平方米 项目时间:2014年 家具设计:Sarit Shani Hay 摄影:Shiran Carmel Tags:小学教育建筑、艺术特性、黑白棋盘状地、卡通机器人脸、鼔状音乐小屋 










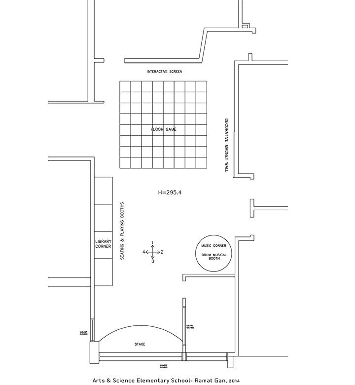
“你好,一年级新生小童鞋”,由Sarit Shani Hay设计的以色列拉马特甘艺术与科学小学入口大厅。设计灵感源于学校自身独特的艺术特性:视觉艺术、戏剧、音乐、舞蹈与科学。120平米的公共空间包括一年级新生四个课程与活动区。

门厅中心主背景墙以渐变的彩色铅笔与记事本样的磁性白板装饰,色彩与造型深得孩子们的喜爱。磁性的记事本样墙面可以让孩子们在上面玩字母、数字以及几何图形的拼贴游戏,促进孩子们的动手能力。 醒目的黑白棋盘状地面能激发孩子们在此跳动、玩耍、做一些有趣的体力游戏。一侧的墙面设计成卡通机器人的脸,一个大大的屏幕犹如夸张的嘴巴嵌在机器人的脸上,孩子们可以在这里玩玩游戏或观看电影。

圆形鼔状音乐小屋,儿童们可以任选自己爱听的歌曲戴上耳机独自陶醉或随歌摇摆。舞蹈区在音乐小屋的后面,这里配有舞台与专业扶手,成为孩子们排练或表演的地方。

可爱造型的小木屋是小朋友们读书讨论的地方,天然的木纹、柔软的座椅、清新的嫩绿,让孩子们放松心情在这里学习与并与其他小朋友交流互动。卡通且有趣的环境设计缓解了学龄前儿童至一年级新生的角色转换,让他们有一个心理缓冲适应期,开启一段充满新奇与快乐的全新世界。“你好,一年级新生小童鞋”!






文字由时尚办公网编译,转载请注明。