雕塑空间 Pratt影视校区设计

美国普拉特学院(Pratt Institute)是美国石油业先驱Charles Pratt 于1887年创立的一所私立综合性艺术学院,它拥有三所分校区,分别位于美国纽约市的曼哈顿、布鲁克林区以及尤蒂卡市。本案介绍的影视系校区坐落于布鲁克林默特尔大道550号,这里原是普拉特(PrattStore)百货大楼的旧址。占地15,000平方英尺的大楼位于默特尔大道复兴的商业圈。建筑只保留了原始框架,经过全面重建,规划为配备高端科技设备的影像室、工作室和剪辑室等。

WASA/Studio A设计公司里那些毕业于普拉特建筑学院的校友,参与了该新校区的重建与设计。包括首席建筑师Jack Esterson,普拉特学院75届校友;高级设计师 Sebastian Touzet,普拉特学院02届校友;项目建筑师Brian Dobrolsky,普拉特12届校友。

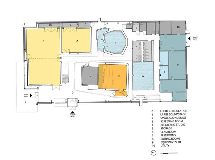
设计团队尊重建筑自身的开敞空间感,在室内创建了一个极具戏剧化的雕塑空间,以契合影视学院的文化气质。该雕塑空间采用了大跨桁架,23英尺高的室内空间没有一根立柱,完美实现了大型工作室的功能需求。

需要隔音与遮光处理的房间,都被覆以精美的冲孔金属板表皮。这些金属板都是由Pratt建筑系的教授和校友设计建造。而那些需要视觉穿透的空间如教室等,则以通透的玻璃做间隔。

建筑的再设计注重可持续理念。包括运用高效能的LED照明系统,利用原建筑的部分构建如楼梯、管道系统等加以回收再利用。

一座可容纳96人的优雅的高科技配置的放映厅;一间可开合的大型电影摄影棚;先进的环绕立体声录音室;剧本创作编辑室;五个“智能”教室为每个学生都配备了高端电脑;两个高端的后期制作房让学生可以在视觉上完善他们的作品;George I. Alden信托基金为Pratt大学贡献了资金来购买混响和录音设施。

朝向南侧主校区入口的建筑立面上,超级图形设计清晰的标明了建筑的用途,也带来令人惊艳的视觉效果。而默特尔大道上的建筑立面则是一幅荧幕墙,用以展示学生作品、公共活动信息、公告等宣传信息。









文字由时尚办公网编译,转载请注明。