旋转空间 SPARK思邦北京办公室设计
项目设计:SPARK 项目地点:中国 北京 项目面积:500 平方米 项目时间:2014年项目总监:Jan Felix Closterma
项目设计:SPARK 项目地点:中国 北京 项目面积:500 平方米 项目时间:2014年 项目总监:Jan Felix Clostermann, Christian Taeubert 摄影:Shu He Tags:建筑设计公司、创意中心、红砖墙、金属旋转门墙体、幻境墙 






















亮点设计中心 (LD Design Center) 是位于北京东四十条的文化创意产业园。其前身为北京计算机二厂,改造后致力于成为推动北京文化创意行业发展的地标中心。这里汇聚了众多建筑设计等设计工作室,他们在这里交叉吸收、思维碰撞,最终打造出本土设计的创意共和国。

SPARK思邦建筑设计事务所也将目光瞄准这里,他们选址一座建于上世纪八十年代的三层建筑的二楼,作为北京办公所在地,总面积约500平方米。

这座建筑有着设计师们最爱的古旧红砖外墙,于是设计团队便沿着外墙搭建了一个通透的玻璃房,将这漂亮的红砖墙变成极具装饰风格的室内构造。他们拆除这堵红砖外墙原有的窗台,形成连续的、高大开阔的门洞,使其与玻璃房之间形成更多的空间渗透。

开放工作区旁,一道长约20米的连续金属旋转门构成的墙体,令空间的开合变得十分灵活有趣。当这道金属门墙关闭时,金属板上隐约映射着周边的办公场景,形成一道迷迷蒙蒙的“幻境墙”,让设计团队在这里自由拼贴、讨论创意构思。

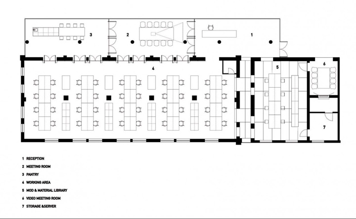
室内主要功能区分为:开放工作区、厨房茶水聚会区、大型会议室、模型制作室和小型视听会议室。经由建筑原有的垂直的楼梯井就是模型制作室。

接待区、大会议室以及厨房休闲区,这三个连续的空间根据不同的需求,可以通过金属旋转门控制开合,满足不同的空间需求。建筑设计行业需要不断的交流设计思想,因此SPARK建筑设计团队为他们自己打造了一个开敞、有趣、且灵活多变的办公空间。
















文字由时尚办公网编译,转载请注明。