重焕新生 意大利FERRILLO MSGM时尚总部设计

正在意大利蓬勃发展的当代时尚服装品牌MSGM,由Massimiliano Giorgetti成立于2008年。品牌以充满玩味的方式将传统款式以现代的思想重新演绎。MSGM将各式日常服饰以醒目印花图案实现随心愉悦的搭配,品牌专注鲜艳亮色、前卫印花与有趣廓型,令爱玩的年轻人为之疯狂。MSGM更被《Vogue》誉为最佳新锐设计师品牌之一。

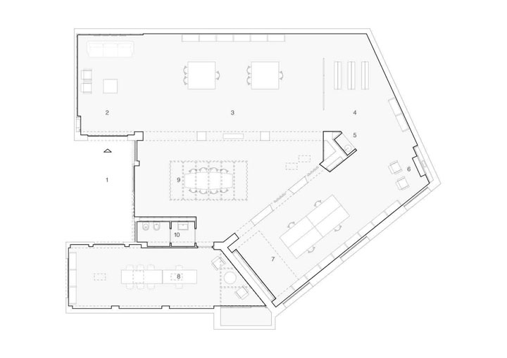
MSGM米兰时尚总部由意大利OFFARCH建筑设计事务所Fabio Ferrillo设计。这是一栋建于20世纪初的废弃铁匠铺,原来的空间格局几乎已不存在,但是建筑旧有的工厂风貌在今天看来却呈现出迷人的魅力。重新规划的平面功能包括办公区、研发室、设计部、厨房、会议室以及一个庭院。设计保留并翻新了斑驳的砖墙,以不规则的平面格局,加入鸽灰色和粉红色,令这间近一个世纪的建筑焕发新生。

设计保留了许多原建筑有趣的工业特征,比如砖墙、废弃的机械构造、悬吊的皮带轮,并新作了水泥地面以及裸露的空调系统。建筑原有的天窗以及门窗等构件都被小心保留加以利用。一处废弃已久的通风竖井与私人办公室相连,成为一道空间布景。顶部的灯罩也是由废弃的工厂捡回来的,经由改造变身为经典的意大利设计。

千万别小看位于室内一隅的壁炉,那可是十九世纪中期法国路易菲利普时期的壁炉,有着灰色大理石的表面,专门从法国南部运来的。法国艺术家Nathalie du Pasquier的油画作品赋予空间精致、优雅的时尚氛围。各种各样上世纪五十年代的作品来自于安特卫普和巴黎的画廊,还有从比利时、荷兰、以及法国等地精心挑选的家具软装饰品,强烈的色彩碰撞和质感对比,以及浓郁的艺术气息令这里呈现出惊叹的视觉效果。





文字由时尚办公网编译,转载请注明。