空间重塑 西班牙 New Arquia Banca 办公室设计

Arquia Banca新办公室位于西班牙赫罗纳的国王广场,这里是一片有着狭窄街道的古老城区。建筑师主要的工作是改建老建筑,组织新空间。

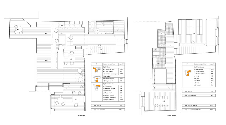
建筑保留原来古老而极简的入口立面,其中一个立面面向狭窄的街巷,影响了室内的采光。因此在设计时将工作区规划在自然采光充足的区域。

办公室位于建筑的底层,这里有着双重楼层的室内高度。经过设计团队的改造设计,敲除部分室内结构,塑造更通透开阔的公共空间,令空间能更好的采光和通风。

类似T型的垂直直角空间,首先在于最大化的利用自然光线,并令空间开敞无阻。设计以原有质朴的石头墙体区分出公共空间和私密空间。一条长长的木制柜台式长桌将入口大厅和客户区统一在同一个视觉空间里。

室内的材质设计也经过缜密考量。为了展示建筑本身质朴厚重的石墙,室内仅选用一种材质:木材。这是基于木材本身的特质:有机环保、也是最为传统的天然装饰材料,与天然石头墙面是最佳搭配。与承重的石头墙不同的是,整齐排列的木条仅是呈现出其装饰性的序列之美。一楼水平序列的木条装饰将人们导引至等候区。而垂直排列的木条则将人们的视线引向新建的二楼。




















合作设计:Salvador BouGracia
结构设计:Blàzquez-Guanterarquitectesconsultorsd’estructures
工程设计:JosepMasachs, Proisotecenginyeria
预算与安全:Gerard Codina Mas, arquitectotécnico
工地设计监理:Javier de las Heras Solé, architect
项目监理:Gerard Codina Mas, architect técnico
项目承建:JoanIllaCasellasConstruccionsViladasens
木工:FusteriaGuixeres JoanGuixeras
锻工:RamónCabratosa
文字由时尚办公网编译,转载请注明。