多彩方盒 德国拜尔斯多夫幼托中心设计欣赏
项目设计:Kadawittfeldarchitektu 项目地点:德国 汉堡项目时间:2013年项目面积:1750平方米摄影:Werner
项目设计:Kadawittfeldarchitektu 项目地点:德国 汉堡 项目时间:2013年 项目面积:1750平方米 摄影:Werner Huthmacher Tags:幼托中心、抽象化的药柜、灰色的建筑外立面嵌入彩色的矩形框、彩色矩形框装饰元素 














德国拜尔斯道夫股份公司(Beiersdorf AG)是德国的日化巨头,总部位于德国汉堡。1882年,德国药剂师保罗·卡尔·拜尔斯道夫成立了以自己姓氏命名的化学产品公司――BEIERSDORF。

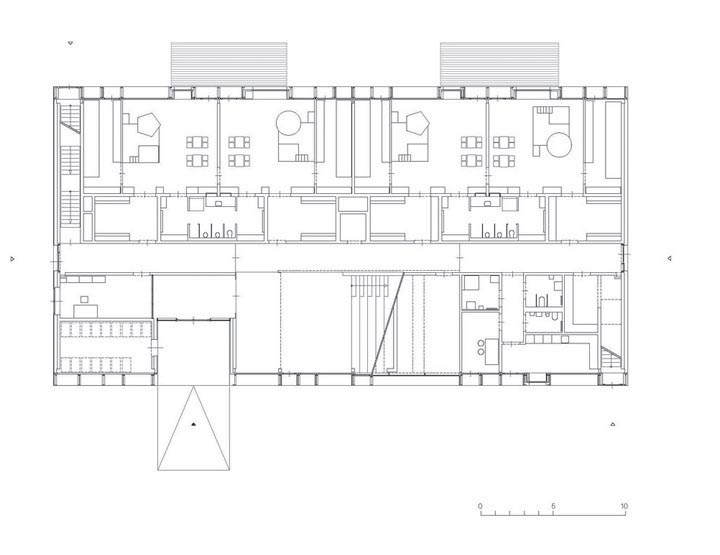
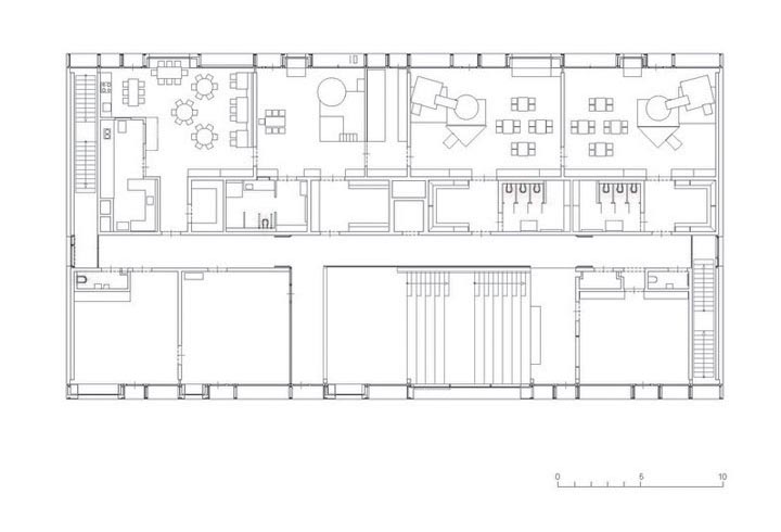
拜尔斯道夫集团在其园区绿地建了一座两层楼的幼托中心。这座极其紧凑的双层矩形建筑,内设多功能空间用作孩子们的游戏和集散之地。幼托中心的设计灵感源于拜尔斯道夫的发展历史,立面设计令人联想到被抽象化的药柜。方型的建筑框架,立面开敞明亮的矩形窗营造了一个明亮、通透的室内氛围,为孩子们提供了优良的游戏和教育场地。

灰色的建筑外立面嵌入彩色的矩形框,不仅律动了建筑外观,同时也为孩子们提供视觉化的空间导向和识别性。同时在室内,这些彩色矩形框也成为游戏空间有趣的装饰元素:一个彩色平台、好玩的盒子、可以攀爬、玩耍、或座躺的地方。这么好玩而又多功能的设计元素,意在激发孩子们的创造力和想象力。

2014年11月底,拜尔斯道夫幼托中心荣获德国可持续建筑委员会(German Sustainable Building Council)颁发的DGNB金奖证书。










文字由时尚办公网编译,转载请注明。